
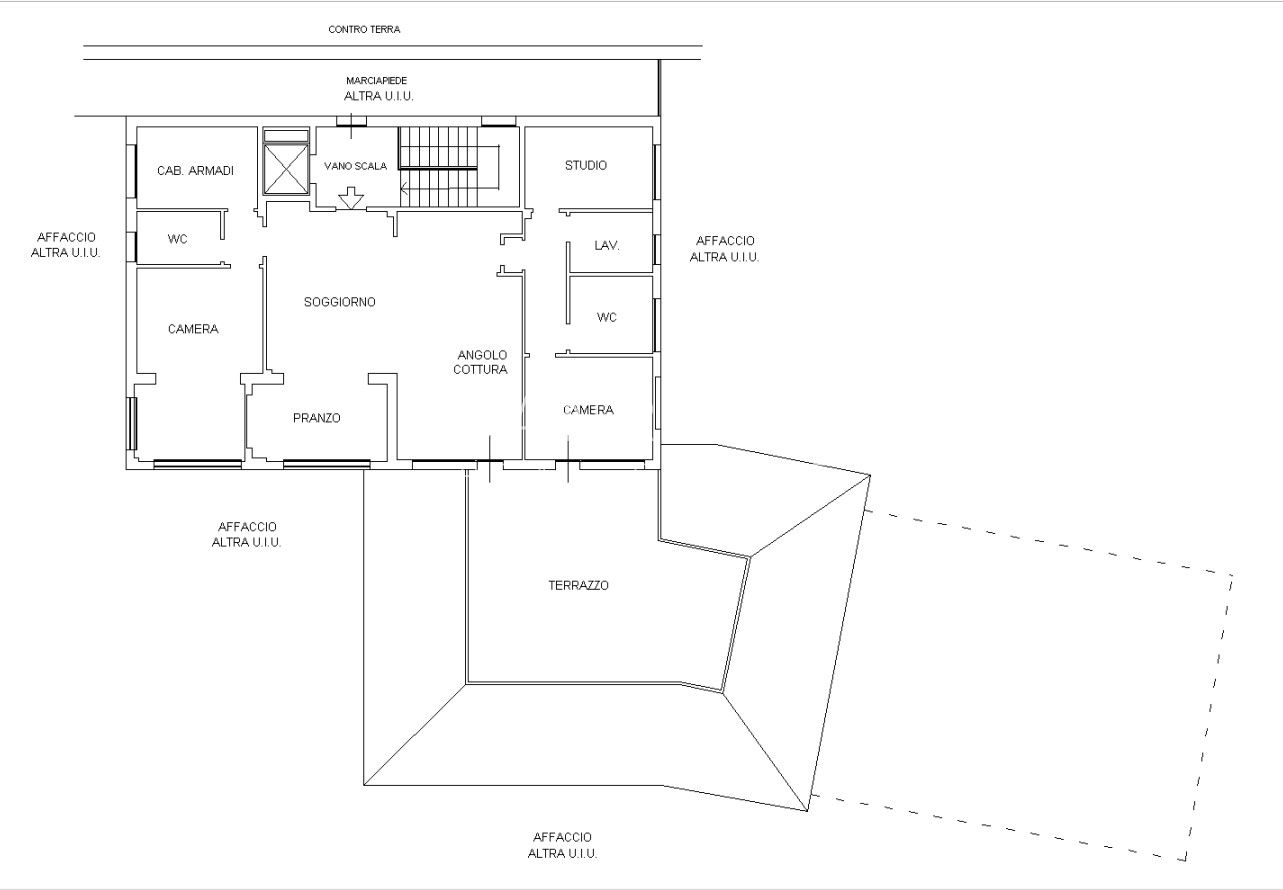
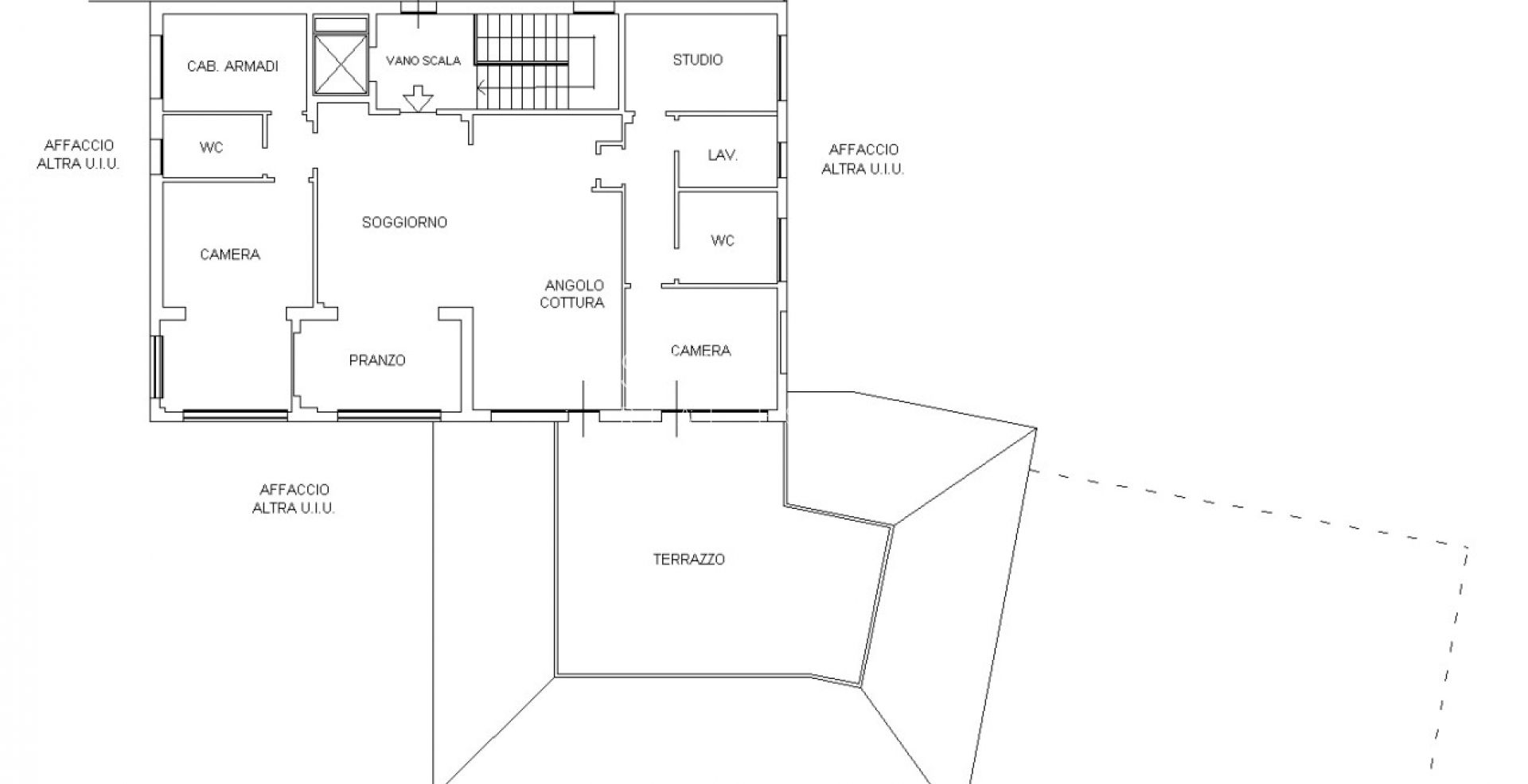
Penthouse with direct sea view, occupying the entire floor, located in a building with only two apartments.
The property, with a surface area of approximately 140 sqm, currently consists of a spacious entrance opening onto a bright living room with an open-plan kitchen.
On the western side, there is the master bedroom with an en-suite windowed bathroom and a large walk-in closet, all enjoying a stunning sea view.
Beyond the living room, there is another sleeping area with two bedrooms, a second windowed bathroom, and a laundry room.
The real added value of this home is undoubtedly the large terrace overlooking the beach below, where the property also includes a private beach cabin.
A private parking space completes the property.
Reference
Property type
Bedrooms
Bathrooms
Surface (sqm)
