
Prestigious penthouse with sea view.
Located in one of the most exclusive areas of Sanremo, on Corso Inglesi, this prestigious penthouse is the perfect choice for those seeking elegance, comfort, and breathtaking views. The apartment, recently renovated with top-quality finishes, offers a perfect blend of style and functionality.
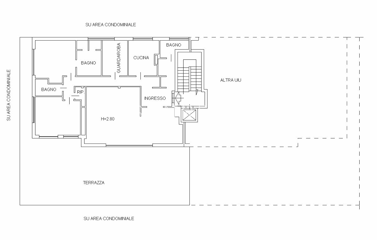
The property spans over 150 sqm and features large windows that flood the rooms with natural light. The stunning panoramic terrace of about 100 sqm, perfect for enjoying moments of outdoor relaxation, offers an unparalleled view of the sea and the entire city.
The interior consists of 3 bedrooms, 2 elegant bathrooms, and a small laundry area. The spacious and bright living room is ideal for hosting social gatherings, with a separate, refined, and functional fully-equipped kitchen.
The entire apartment is equipped with an audio diffusion system in every room, ensuring a classy atmosphere in every corner of the home.
The property also includes a private garage, providing convenience and security in one of the most sought-after areas of Sanremo.
A rare opportunity for those seeking an exclusive property, in a central yet tranquil location, with all modern comforts and a view like no other.
Sold
Reference
Property type
Bedrooms
Bathrooms
Surface (sqm)
